8
$679,900 Sale
Listed 5 hours ago
36 Sagewood Avenue
· 3
· 3
· 1
· 1100-1500
Listing History
Buy/Sell/Terminated/Expired listing history for 36 Sagewood Avenue
Key Facts
Key facts for 36 Sagewood Avenue
Property Type
House, 2-Storey
Parking
Attached 1 garage, 1 parking
MLS #
S12478999
Size
1100-1500 sqft
Basement
Full,Unfinished
Listed on
2025-10-23
Lot size
25 x 100.0
Tax
-
Days on Market
1
Approximate Age
-
Maintenance Fee
-
Description
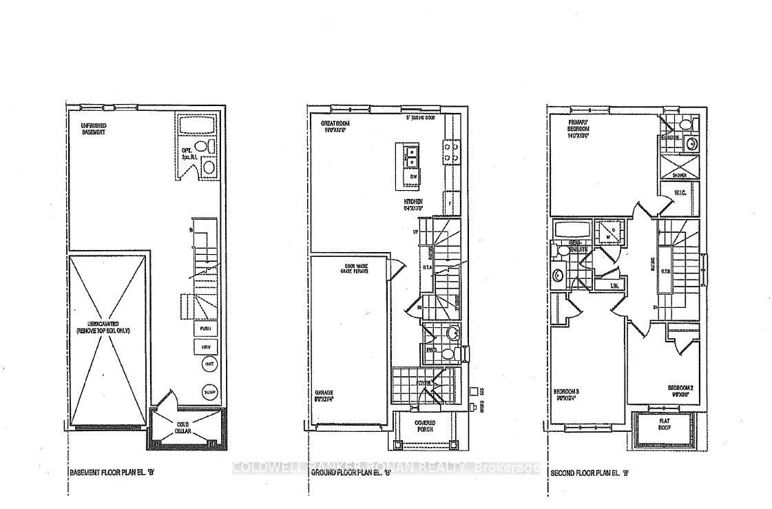
Welcome to the Willowbrook Model by FirstView Homes Discover this beautifully crafted all-brick semi-detached home in a sought-after, family-friendly community. Offering 1,393 sq. ft. of thoughtfully designed living space, this 3-bedroom, 2-bathroom home blends comfort, style, and functionality. Clo...sings are scheduled for Summer 2026, with the exciting opportunity to select your finishes and personalize your home. Step inside to a bright, open-concept main floor featuring 9' ceilings, hardwood flooring, and a stunning chef's kitchen with tall upper cabinets, a large island with quartz countertops, and an extended breakfast bar-perfect for both daily living and entertaining. A 6' patio door opens to your backyard, complete with a roughed-in gas line for a future BBQ. An elegant stained hardwood staircase with modern metal pickets leads to the second floor, where you'll find three spacious bedrooms, two full bathrooms, and a conveniently located laundry room. The unfinished basement provides ample storage space and includes a cold cellar. Outside, paved driveway and sodded lot adds curb appeal and everyday convenience. With FirstView Homes' reputation for quality craftsmanship and attention to detail, you purchase with confidence. Community Highlights: Close to shopping, dining, and everyday amenities, Walking distance to schools, Just 12 minutes to Centennial Beach, Quick access to major routes and a 5-minute drive to the Barrie South GO Station. Additional models and floor plans are also available. First-time buyers may also qualify for the GST/HST New Housing Rebate under the Government of Canada's new legislation. Don't miss the chance to join this growing community-your new home awaits!
Similar Properties (No results)
Courtesy of: COLDWELL BANKER RONAN REALTY